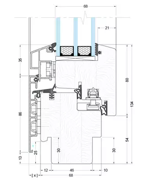
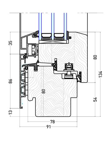
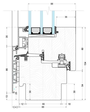
UD-Line - Holz-Aluminium Systeme
Wärmedämmung durch Wärmeschutzgläser von Ug 1,0 bis zu Ug 0,5 W/m²K.
Alle INTERFEN Fenster haben den Roto NX Markenbeschlag inklusive RC 1 (Widerstandsklasse 1). Zusätzliche Sicherheit durch RC 2 Beschläge, sowie Verbundsicherheitsglas ist ebenfalls möglich.
Wohnen mit kombiniertem Wärme und Schallschutz. Die Wärme bleibt drinnen und der Lärm draußen. Fühlen Sie sich wohl durch ein gesundes Raumklima. Schallschutzklassen II-V erhältlich.
Optimale Energieeffizienz in jedem INTERFEN Fenster. Reduzieren Sie Ihre Energiekosten und tun Sie aktiv etwas für den Klimaschutz.
Verschiedene Hölzer – Eiche, Kiefer, Meranti, sowie weitere auf Wunsch erhältlich. Exzellente Oberfläche, große Farbvielfalt in unzähligen RAL- & DB-Farbtönen, sowie Remmers Lasuren. Sie Entscheiden das Design Ihrer INTERFEN Fenster.










































































































































